Der Übersichtsplan zeigt die Anordnung von Wohnhaus (rechts oben) und Nebengebäuden, durch die ein geschlossener Hof entsteht

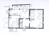
  Erdgeschossgrundriss des Hauses: Am oberen Bildrand die Erweiterung bis zur Grundstücks-
grenze

  Inschrift im Obergeschoss: "JACOB ERTEL ANNO 1722" - die Fachwerkstruktur zeigt aber, dass das Erdgeschoss noch älter ist.

 

 

Straßenansicht mit Hoftor vorher ...

 

 

... und nachher - das Tor ist nun weiter hinten, sodass die Haustür außerhalb des Hofs liegt.

 

 

Durch das Öffnen von Ausfachungen entstanden neue Raumzusammenhänge. Hier der Blick von der Küche zum Wohnbereich.

 

 

Vorher: Hofansicht mit Klo- und Entenhaus auf der Jauchegrube. Aus gutem Grund gab es auf dieser Seite früher keine Fenster ...

 

 

Jetzt: Der Wohnbereich öffnet sich mit großem Fenster zum Hof, der Hinterausgang führt von der Küche aus unterm Stalldach auf die Terrasse.

 

Winterlicher Blick vom Wohnbereich in Richtung Hof.

 

 

Vorher: Unnütze Restecke

 

Jetzt: Grenzbebauung ...

 

 

mehr zum Anbau

 

... als Erweiterung für die Wohnküche. Links der Aufgang zum Wohnbereich, rechts schließt sich der Essbereich an.

 

 

 
   
Vorher: Feuchter Boden, morsche Fußschwelle, ...   Jetzt: Helles Architekturbüro.  

Die blau lasierte Lehmwand nimmt eine frühere Farbgebung des gesamten Hauses auf.

 

 

Vorher: Diele mit Kellerabgang unter der steilen, morschen Treppe, die zum Obergeschoss führt.

Jetzt: Freundlicher Eingangs- bereich mit Gäste-WC unter einer bequemen Treppe.

 
         

 

Eine unschöne Kunststeintreppe hat einer begrünten Stahlkonstruktion Platz gemacht.

Der zuvor unbefestigte Vorbereich ist mit Sandsteinplatten und -pflaster von einem Abbruchgrundstück gestaltet.

 
             
   

Wo vorher Schweineställe, Klo- und Entenhäuschen waren, ...

...ist auf der ehemaligen Jauchegrube ein Spielbereich entstanden. Die gereinigte Grube dient als Regenwasserzisterne mit 30.000 Liter Fassungsvermögen.

   
             
   

Gegenüber die ehemalige Schmiede, ...

 

...rechts dahinter schließt ein weiterer Außenraum an, ...

   
             
   

... der vorher Wirtschaftsbereich mit Überdachung für Kleintierhaltung und anderes war, ...


 

... jetzt ein Garten mit Stauden, Obst, Gemüse und einer Feuerstelle.

   
             
    Die Rückseite der Scheune ist mit einer Photovoltaikanlage gedeckt, die im Jahr ca. 10.000 Kilowattstunden Strom liefert.


Die Module sind durch ein spezielles Rahmensystem gleichzeitig die Dachdeckung.

   
             
             
     

 

     
 

 

 

 

 

 

 

Um zu den Hauptseiten zurückzukehren bitte dieses Fenster schließen bzw. minimieren oder die

Startseite neu öffnen